
Interesse am Wohnen im Altbau? Es muss nicht alles gerade sein? Ein Fahrstuhl wäre schön? Und auch sonst sollte alles zeitgemäß sein? Dann könnte eine der 10 Wohnungen im alten Gasthaus „Tanne“ im Herzen von Osterwieck genau die Richtige für Sie sein! Registrieren Sie sich noch heute!
Nach aktuellem Stand soll der Erstbezug bis zum Jahresende erfolgen – und voraussichtlich ab Mitte Juli werden wir dann auch konkrete Mietverträge abschließen!
Das Team der Wohnungsgesellschaft steht Ihnen bei allen Fragen gern zur Seite. Sprechen Sie uns an!
Wann? 26.06.2025, 15 bis 18 Uhr
Wo? Rosmarinstraße 7 in Osterwieck
Wie? Geführte Besuchsmöglichkeiten in Teilbereichen des alten Gasthauses „Tanne“
Zu beachten? Festes Schuhwerk erforderlich. Das Objekt ist nicht barrierefrei begehbar. Das Betreten von Grundstück und Baustelle erfolgt auf eigenes Risiko!




Sehr geehrte Damen und Herren,
zwischen dem 23.12.2023 und dem 02.01.2024 bleibt unser Büro geschlossen. Bei Havarien stehen Ihnen die bekannten Rufnummern zur Verfügung. Wir wünschen allen Mietern und Geschäftspartnern ein besinnliches Weihnachtsfest und einen gesunden Rutsch ins neue Jahr!
Ihr Team der Wohnungsgesellschaft Osterwieck
Ab sofort können für unser Neubauprojekt Mietverträge abgeschlossen werden. Sichern Sie sich noch heute den Erstbezug in eine der modernsten Mietwohnungen Osterwiecks! Gern steht Ihnen Frau Beier für alle Fragen rund um die Wohnungen zur Verfügung (039421-78511 oder a.beier@wg-osterwieck.de)


Gute Nachrichten: Unser Neubauprojekt „Vor dem Kapellentor“ wächst und nimmt Gestalt an. Dabei bleiben auch wir nicht verschont von explodierenden Baustoffkosten und Materialmangel in Teilbereichen. Gemeinsam mit unseren Partnern und ausführenden Firmen konnten wir bislang aber immer einen Weg finden. Daher planen wir unverändert eine Fertigstellung bis Ende 2023 und hoffen, dass wir das auch umsetzen können.
Aktuell wird kräftig an allen vier Hausteilen gebaut: Die Häuser 3 und 4 sind bereits im Rohbau hergestellt und das Dach ist drauf, hier geht es jetzt an den Innenausbau. Fenster und Haustüren sind bereits eingebaut – große Elemente mit 3-fach Verglasung. Innenputz und Trockenbau arbeiten sich gerade vorwärts. Die Häuser 1 und 2 befinden sich im Rohbau, aber auch hier wachsen die Häuser in die Höhe. Je nach Wetterlage sollen die Häuser bis spätestens März im Rohbau fertig sein.
Auch für die Folgearbeiten ist vorgesorgt: Nahezu alle Gewerke sind bereits vergeben oder befinden sich aktuell in der Ausschreibung. Somit kann es kontinuierlich weitergehen.

Die Bauarbeiten an der Tanne, Rosmarinstraße 7 bis 10, dauern nun schon gut 2 Jahre an. Zumindest mit den Rohbauarbeiten und der Sanierung der Altbausubstanz werden wir voraussichtlich bis zum Sommer 2023 fertig sein. Bedingt durch den langen Leerstand und die undichte Außenhülle waren die Schäden erheblich umfangreicher, als wir zunächst angenommen hatten.
Die Häuser 9 und 10 sind im Rohbau nahezu hergestellt. Neue Fenster folgen in Kürze. Auch der Saal, sowie die darüber liegende Wohnung, sind im Wesentlichen fertig. Die Häuser 7 (Torhaus) und 8 (ehemaliges Gasthaus) werden momentan noch saniert, aber auch hier sind schon große Teile fertiggestellt. Bei allen Häusern sind schon die Dächer gedeckt, mit Ausnahme von Anschlussstellen ans Treppenhaus und das Torhaus. Der Treppenturm, mit innenliegendem Fahrstuhl, ist schon bis zum 1. OG gewachsen, anschließen werden sich Laubengänge in die Wohnungen. Die verwendeten Baustoffe sind u.a. Nadelholz, Eiche, Lehmsteine und historische Lehmziegel auf der Straßenseite. Die straßenseitigen Fenster werden nach historischem Vorbild nachgebaut und nach außen öffnen.
Sofern alle weiteren Arbeiten planmäßig laufen, hoffen wir, dass wir bis Ende 2024 alle Wohnungen bezugsfertig hergstellt haben.


Sehr geehrte Mieterinnen und Mieter,
in diesen Tagen sind Mitarbeiter im Namen der Firma „Deutsche Glasfaser“ in Osterwieck unterwegs, auch in den Häusern der Wohnungsgesellschaft. Auf Grund einiger Nachfragen möchten wir Ihnen hierzu folgende Informationen geben:
Glasfaser bedeutet Internet der Zukunft – im Gegensatz zum aktuellen Kupferkabel sind hier wesentlich höhere Übertragungsgeschwindigkeiten möglich. Wenn bei Ihnen viele Personen im Internet surfen, wenn Sie eventuell Fernsehen über Internet empfangen (wie Magenta-TV), oder wenn Sie viel Streamen (Netflix, Sky, & Co.) kann die aktuelle Geschwindigkeit oft zu gering sein. Mit Glasfaser sind Sie bis zu 60mal schneller im Internet unterwegs!
Aus den genannten Gründen haben wir grundsätzlich signalisiert, dass wir gern alle Objekte an das Glasfasernetz anschließen würden. Für Sie ist das zunächst einmal KOSTENFREI! Sofern sich in einem unserer Häuser ein Haushalt für einen Vertrag bei der Deutschen Glasfaser entscheidet, würde auch der Anschluss Ihrer Wohnung KOSTENFREI erfolgen.
Den eigentlichen Vertrag über Internet und Telefon würden Sie, wie bisher mit Ihrem Anbieter, direkt mit der Deutschen Glasfaser abschließen. Diese bietet verschiedene Tarife, im ersten Jahr vergünstigt.
Wichtig: Bereits nach 2 Jahren können Sie Ihren Anbieter wieder wechseln, sofern es Ihnen nicht gefällt. Die „alten“ Anschlüsse bleiben selbstverständlich erhalten, Sie erhalten mit Glasfaser einen ZUSÄTZLICHEN Anschluss. Somit könnten Sie nach Ablauf der Vertragszeit wieder zu jedem Anbieter frei wechseln!
Bei grundsätzlichen Fragen zu diesem Thema stehen wir Ihnen gern zur Verfügung. Bei Fragen zu Verträgen und Leistungen möchten Sie sich bitte direkt an die Deutsche Glasfaser wenden.
Vielen Dank
Ihr Team der Wohnungsgesellschaft Osterwieck
Es ist endlich soweit: alle Genehmigungen liegen vor und ein Rohbauer ist gefunden. Schon diese Woche Freitag, den 01.04.2022, beginnt die Baustelleneinrichtung. Und ab der kommenden, ersten Aprilwoche geht es mit den eigentlichen Arbeiten los. Bis November sollen dann die Rohbauarbeiten abgeschlossen sein. Sofern uns die aktuelle Rohstoffsituation keinen Strich durch die Rechnung macht…

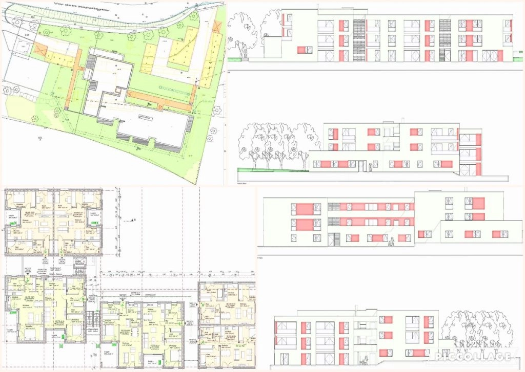
Die Planung befindet sich im „Endspurt“ und der Baustart Frühjahr 2022 ist im Visier – demnächst wird es ernst mit unserem Neubau! Die alten Plattenbauten sind schon verschwunden. An ihrer Stelle werden wir 26 moderne 2- bis 4-Raum-Wohnungen errichten. Über den Fortschritt werden wir Sie an dieser Stelle auf dem Laufenden halten. Weitere Infos finden Sie auf unserer Homepage unter der Rubrik „Wohnungen“ oder bei uns in der Mittelstraße.

Im Dezember wird unsere WGO 30 Jahre alt!

Für die bevorstehende Vorweihnachtszeit wünschen wir Ihnen alles Gute, vor allem Gesundheit, und besinnliche Tage.
Bitte beachten Sie, dass wir vom 23.12.2021 bis zum 02.01.2022 Betriebsurlaub haben. Sie erreichen in dringenden Notfällen wie gewohnt unseren Havariedienst.

Aktuelle Informationen zur Corona-Lage finden Sie auf der Seite des Landes Sachsen-Anhalt.
Langsam, aber kontinuierlich schreiten die Arbeiten an der denkmalgeschützten „Tanne“ voran. Die Häuser Rosmarinstraße 9 und 10 haben inzwischen in weiten Teilen eine sanierte Fassade erhalten. Leider waren durch erhebliche Schäden nur noch wenige Teile der ursprünglichen Fassade zu retten. Alle neuen Teile wurden jetzt in massiver Eiche ergänzt und mit Lehmsteinen ausgemauert. Bis zum 2. Obergeschoss haben sich unsere Zimmerer und Maurer inzwischen vorgearbeitet. Hofseitig wurde das marode Mischmauerwerk durch gedämmten Poroton ersetzt.

Die Deckenbalken über EG und 1. OG sind bereits neu eingezogen, Brandwände zu den seitlichen Gebäudeteilen hochgezogen. Auch die stark vom Hausschwamm befallene Kellerdecke musste ersetzt werden. Innen ist bereits teilweise die Unterteilung der neuen Räume erfolgt.

Nahezu alle Bereiche sind inzwischen entkernt, um einen detaillierten Überblick über eventuelle Schadensbilder zu haben. Von zahllosen Holzschädlingen, über massivem Hausschwammbefall in zahlreichen bereichen, bis zu statisch stark geschädigten Holzteilen wurde dabei alles „entdeckt“. Selbst in der massiven Kappendecke des Saales hat sich der echte Hausschwamm großflächig ausgebreitet – auch diese Decke muss nun ersetzt werden. Wichtig ist aber: es geht vorwärts!

Seit Anfang Juli wurden die alten Plattenbauten beräumt, Asbestplatten abgenommen, und schon Ende dieser Woche soll es mit dem „richtigen“ Abriss losgehen. Es passiert also doch etwas!
Parallel zu den Abrissarbeiten laufen die Vorbereitungen des Neubaus auf Hochtouren. Inzwischen stehen alle wesentlichen Punkte fest und es geht an die Vorbereitung der Ausschreibungen. In den ersten Monaten 2022 soll es dann mit dem Bau losgehen. Mit der Fertigstellung rechnen wir im 3. oder 4. Quartal 2023.
Entstehen werden 26 Wohnungen zwischen 45 und 95m². Dabei sind alle Wohnungen ebenerdig oder über einen Fahrstuhl erreichbar. Kennzeichnend sind weitestgehend offene Grundrisse mit großzügigen Loggien oder Terrassen. Zukunftsweisend soll auch der Energiebedarf des Gebäudes sein, der mittels Wärmepumpe und Solaranlage positiv beeinflusst wird.


Die letzten Planungsabstimmungen laufen und bald wird für alle Interessierten auch etwas zu sehen sein – das Neubauvorhaben „Vor dem Kapellentor“ der Wohnungsgesellschaft nimmt Gestalt an. Der Abriss der Wohnblöcke ist noch für diesen Sommer geplant. Und wenn der erste Schritt gemacht ist, wird es kontinuierlich weitergehen.
Sobald der Startschuss fällt, werden wir allen bereits registierten Interessenten nähere Informationen geben. Und natürlich freuen wir uns auch über alle neuen Anfragen!

In kleinen Schritten geht es voran in der Rosmarinstraße. Die Häuser 9 und 10 sind jetzt vollständig entkernt. Ab Ende Mai bzw. im Juni sollen dann die Arbeiten für den Neuaufbau bzw. die Rekonstruktion beginnen. Neben einer neuen Massivdecke über den Kellerräumen wird eine Brandwand zum Nachbarhaus gesetzt. Anschließend erfolgt das Holztragwerk. Die Fassade soll weitestgehend erhalten werden, Bereiche mit Hausschwammbefall erfordern jedoch den Austausch von Hölzern in bestimmten Bereichen. Die spätere Farbgebung erfolgt in enger Abstimmung mit den Denkmalschutzbehörden, hier gab es bereits umfassendere Untersuchungen. In den Häusern 9 und 10 sollen später 3 Wohnungen entstehen, je Geschossebene eine Wohnung.
In den vergangenen Wochen haben sich die Bauarbeiten auf die Häuser 7 und 8 konzentriert. Hier wurden schadhafte bzw. von Schädlingen befallene Bauteile entkernt. Wenngleich auch hier teilweise starke Schäden zum Vorschein gekommen sind, können hier wesentliche Teile der ursprünglichen Konstruktion gesichert und für eine Instandsetzung verwendet werden. In diesem Gebäudebereich erfolgt aktuell bereits der Austausch schadhafter gegen neue Holzteile. Angepasst an die Struktur und nach althergebrachter Zimmermannskunst sollen Alt und Neu sich später harmonisch zusammenfügen und dem Denkmalschutz gerecht werden. Hierfür steht auch das eng zusammen arbeitende Team aus Denkmalschützern, Holzschutzgutachter, Statiker und Architekt.
Nachfolgendes Bild: rekonstruierte Grundmauer zur Rosmarinstraße und reparierte Holzverbindungen in den Häusern 7 und 8.

Nachfolgendes Bild: Entkernung und Notabstützungen in den Häusern 7 und 8

Nachfolgendes Bild: Innenaufnahmen Häuser 7 und 8. Hier läuft gerade die Entkernung.

Der Anfang ist gemacht – in dieser Woche wurden die ersten Untersuchungen und Bohrungen für das Baugrundgutachten und den Abriss der Gebäude vorgenommen. Als nächstes folgen dann Vermessung und Vorbereitung des Abrisses. Dieser soll planmäßig noch in diesem Jahr erfolgen – womit sich das Straßenbild an dieser Ortseinfahrt radikal ändern wird.
Parallel läuft die Genehmigungsplanung des Neubaus auf „Hochtouren“. Schon bald können wir allen Interessenten konkrete Grundrisse anbieten – und alle Interessenten können sich dann auch schon ihre „Lieblingswohnung“ sichern! Nur ein wenig Geduld ist noch erforderlich…
Nach dem kurzen, aber intensiven Wintereinbruch konnten die Arbeiten an unserem Altstadtprojekt nun wieder aufgenommen werden. Inzwischen sind die Gebäude 9 und 10 weitestgehend entkernt. Übrig geblieben ist ein „Holzskelett“.


Der Dachstuhl dieser Häuser wurde nun nach einer Holzanalyse des Landesamtes für Denkmalpflege auf das Jahr 1604/1605 datiert – stammt also noch aus der Bauzeit und ist im Originalzustand. Je nach Schadensbild und statischen Erfordernissen soll nun versucht werden, möglichst viele Originalteile des Dachstuhls zu sichern und wiederzuverwenden.
In den kommenden Wochen werden mehrere Arbeiten parallel laufen: Schwammsanierung, Ertüchtigung bzw. Neuschaffung von Grundmauern, Ertüchtigung bzw. Austausch an der gesamten tragenden Holzkonstruktion, Sicherung und Sanierung der Fassade, Rekonstruktion des Dachstuhls. Neben dem Neuaufbau wird zudem die Entkernung in den Häusern 7 und 8 fortgesetzt.
Darüber hinaus wird in den kommenden Wochen eine detailierte Analyse der Farbschichten und Gestaltungen der Fassade erfolgen. Ziel ist die Ausarbeitung eines Farbkonzeptes für die Gesamtfassade, die diesem historischen Gebäude gerecht wird.
An dieser Stelle vielen Dank für das positive Feedback auf unser Neubauprojekt! Die Planungen sind in vollem Gang. Gemeinsam mit der arc architekturconzept GmbH aus Halberstadt wird aktuell an der finalen Grundrissgestaltung gearbeitet. Eines steht schon fest: alle Wohnungen werden ebenerdig oder mittels Aufzug erreichbar sein! Komfort und Zugang spielen eine große Rolle bei der Planung. Die Wohnungsgrundrisse selbst konnten noch individueller gestaltet werden.
Parallel laufen die Vorbereitungen für den Abriss der Blöcke: Schadstoffgutachten, Abrissgenehmigung, Aussschreibung des Abrisses – die Aufgaben sind vielfältig und zeitintensiv. So wird es noch ein wenig dauern, bis erste Schritte vor Ort sichtbar werden.
Über die weitere Entwicklung werden wir Sie an dieser Stelle auf dem Laufenden halten!
Seit Oktober 2020 sind die Arbeiten zur Entkernung des Gebäudekomplexes in vollem Gang.

Nachdem zunächst die Dächer abgedeckt und mit Planen gesichert wurden, laufen jetzt die Arbeiten im Inneren der Gebäude. Von außen sichtbar sind im Wesentlichen nur Gerüst und Planen.

Die historischen Fenster und Türen wurden ausgebaut und sollen, wenn möglich und sinnvoll, aufgearbeitet werden. Im gesamten Gebäude erfolgten umfangreiche Abstützungs- und Sicherungsmaßnahmen, damit die folgende Entkernung möglichst gefahrlos erfolgen kann.

In den Häusern Rosmarinstraße 9 und 10 wurden bereits große Teile der Gefache entfernt, damit Holzschutzgutachter und Statiker alle Bauteile begutachten können. Die zu Tage getretenen Schäden – auf Grund diverser Holzschädlinge oder statischer Überlastung – sind vielfältig. Im Bereich der Häuser 9 und 10 werden große Teile des Fachwerks und des Dachstuhls ersetzt werden müssen. Zu den Nachbargebäuden werden Brandschutzwände neu entstehen.

Das Holz für Decken und Dachstuhl ist bemessen und kann nun bestellt, getrocknet und vorbereitet werden. Ab der zweiten Januar-Hälfte ist dann der schrittweise Neuaufbau geplant. Zeitgleich zum Neuaufbau der Häuser 9 und 10 wird die Entkernung der Häuser 7 und 8 fortgesetzt. Ziel ist eine kontinuierliche Bautätigkeit an unserer „Großbaustelle“.
Der Dank für die bisherigen und reibungslosen Arbeiten gilt den beteiligten Handwerksfirmen: Schauener Dachbau (Schauen), Zimmerei Adams (Ströbeck), Firma Alma (Derenburg), Tischlerei Heydenreich (Ilsenburg), Hausmeisterservice Sven Jura (Osterwieck), Elektro Dörge (Hoppenstedt). Und natürlich unserem Architekturbüro von Herrn Urbisch und seinem Team.
Neben den lokalen Firmen ist auch die enge und zielorientierte Zusammenarbeit zwischen Wohnungsgesellschaft, Stadt Osterwieck und der unteren Denkmalschutzbehörde des Landkreises (Frau Unger) für den bisherigen Erfolg zu erwähnen.

Zum Schutz unserer Mitarbeiterinnen und Mitarbeiter, sowie natürlich auch zu Ihrem Schutz, möchten wir Sie bitten, ab sofort ausschließlich telefonisch, elektronisch (email) oder postalisch Kontakt mit uns aufzunehmen.
Unsere Geschäftsräume sind ab dem 27.10.2020 für den Publikumsverkehr geschlossen. Alle persönlichen Termine erfolgen ausschließlich nach vorheriger Terminabsprache und sind auf ein notwendiges Minimum zu beschränken.
Bitte beachten Sie bei einem Besuch unserer Geschäftsräume folgende Regeln:
– bei Krankheitssymtomen (Erkältung, Fieber, etc.) möchten Sie von einem persönlichen Besuch absehen
– es darf immer nur 1 Person unsere Geschäftsräume betreten
– die empfohlenen Mindestabstände sind in unserem Gebäude einzuhalten (2m)
– im Eingangsbereich steht Händedesinfektion zur Verfügung
– das Tragen eines Mund-Nasenschutzes ist für Besucher in unseren Geschäftsräumen Pflicht
– bitte beachten Sie ggf. zusätzliche Hinweise im Eingangsbereich

Unter diesem Motto plant die Wohnungsgesellschaft gerade einen modernen Neubau an alter Stelle: Die beiden Wohnblöcke „Vor dem Kapellentor“ sollen einem zukunftssicheren Neubau weichen.
Unser Anspruch für Sie:
Ihr Standortvorteil:
Egal ob Busbahnhof, Geschäfte des täglichen Bedarfs, Ärzte, Kita, Grundschule, Gymnasium und Freibad. Alles ist fußläufig in höchstens 10 Minuten erreichbar.
Und für alle die auswärts arbeiten:
Die A36 Richtungen Braunschweig oder Wernigerode erreicht man in nur 10 Minuten. Sie fahren lieber Bahn? Die Bahnhöfe Vienenburg, Wernigerode oder Halberstadt sind nur 15 bis 25 Fahrminuten entfernt.
Sie suchen Wohnraum, der perfekt zu IHNEN passt? Dann INFORMIEREN und REGISTRIEREN Sie sich noch heute als Interessent für eine Wohnung!
Ihr BONUS: Als Erstmieter genießen Sie die Möglichkeit, Ihre künftige Innenausstattung mitzugestalten. Damit langes Wohlfühlen garantiert ist.
Wir freuen uns auf Sie! Ihr Ansprechpartner: Frau Anja Beier (a.beier@wg-osterwieck.de oder 039421-78525)
Ab August ist es endlich soweit: nach 2 Jahren Planung sollen die ersten Arbeiten am ehemaligen Gasthof „Zur Tanne“ beginnen.
Der Gebäudekomplex Rosmarinstraße 7-10 wurde in der zweiten Hälfte des 16. Jahrhunderts errichtet, Ende des 19. / Anfang des 20. Jahrhunderts erfolgten umfangreichere Umbauten. Laut Landesamt für Denkmalpflege handelt es sich um einen der wertvollsten Profanbauten aus der Zeit der Spätrenaissance in Osterwieck.
Im Mittelpunkt der Arbeiten stehen zuerst alle tragenden Elemente, denn jahrzehntelanger Leerstand hat der Bausubstanz stark zugesetzt. Bauabschnitt 1 wird daher die gesamte Fachwerkkonstruktion umfassen, inklusive Decken und Dachstuhl. Auch Mauerwerksteile müssen ertüchtigt, das Dach neu gedeckt, Fenster und Fassade straßenseitig aufgearbeitet werden. Erst wenn die tragenden Teile und die Außenhülle wieder intakt sind, geht es mit dem eigentlichen Ausbau weiter. Für diesen ersten Abschnitt werden sich die Arbeiten voraussichtlich bis weit in das Jahr 2021 hinziehen.
Anschließend wird die Erschließung von der Hofseite aus erfolgen – über ein neues Treppenhaus mit Fahrstuhl und vorgesetzten Laubengängen. So können die geplanten 9 Wohnungen auf rund 700 m² problemlos erreicht werden. Es werden dabei überwiegend 3-Raum-Wohnungen zwischen 60 und 90m² entstehen. Im Dachgeschoss sind Abstellräume geplant, sowie ein separater Waschmaschinenraum. Selbstverständlich wird auch das Dachgeschoss mit dem Fahrstuhl erreichbar sein. Ebenfalls neu gestaltet wird der Innenhofbereich. Hier wird mindestens ein Stellplatz pro Wohnung zur Verfügung stehen. Daneben soll auch ein attraktives, „grünes“ Wohnumfeld entstehen.
Für alle Interessierten wird es an dieser Stelle Neuigkeiten über den Bauverlauf geben. Seien Sie gespannt!
Im Juni 2019 begannen umfangreiche Arbeiten an unseren beiden Wohnblöcken am Rande des Altstadtkerns, Mauerstraße 13 und 14. Neben dem optischen Erscheinungsbild in dieser präsenten Lage war das Ziel die nachhaltige Nutzbarkeit.


Von außen sofort zu erkennen: neue und frische Farben an beiden Blöcken als Hingucker, mit einheitlichem Konzept, aber unterschiedlichen Farbtönen. Ziel war eine einladende, harmonische Gestaltung der 1984 erbauten Blöcke.



Dazu passend: frischer Putz und dezente Farben lassen die Treppenhäuser neu erstrahlen und steigern den „Wohlfühlfaktor“.
Aber nicht nur Optik zählt: das in die Jahre gekommene Dach mit seinen maroden Schornsteinköpfen wurden abgetragen und durch neue und ortstypische Tondachsteine ersetzt, die Schornsteine verschiefert. Positiv für den Wärmebedarf: die oberste Geschossdecke wurde in diesem Zusammenhang umfangreich gedämmt.

Bequemes und weitestgehend stufenfreies Erreichen der Treppenhäuser wurde im Haus 14 bereits realisiert: durch neue Hauszugänge auf der Straßenseite und einen stufenfreien Zugang zum Keller auf der Rückseite. Weiterhin wurde ein zentraler Müllplatz geschaffen, mit Abstand zum Wohnblock, eingezäunt und ansprechend vor Blicken geschützt.
Dieses ist in einem gewissen zeitlichen Abstand auch für Haus 13 vorgesehen.